37 Riverside Drive, Sandringham
House
Stunning Rare Offering North Facing Beachfront with Panoramic Views
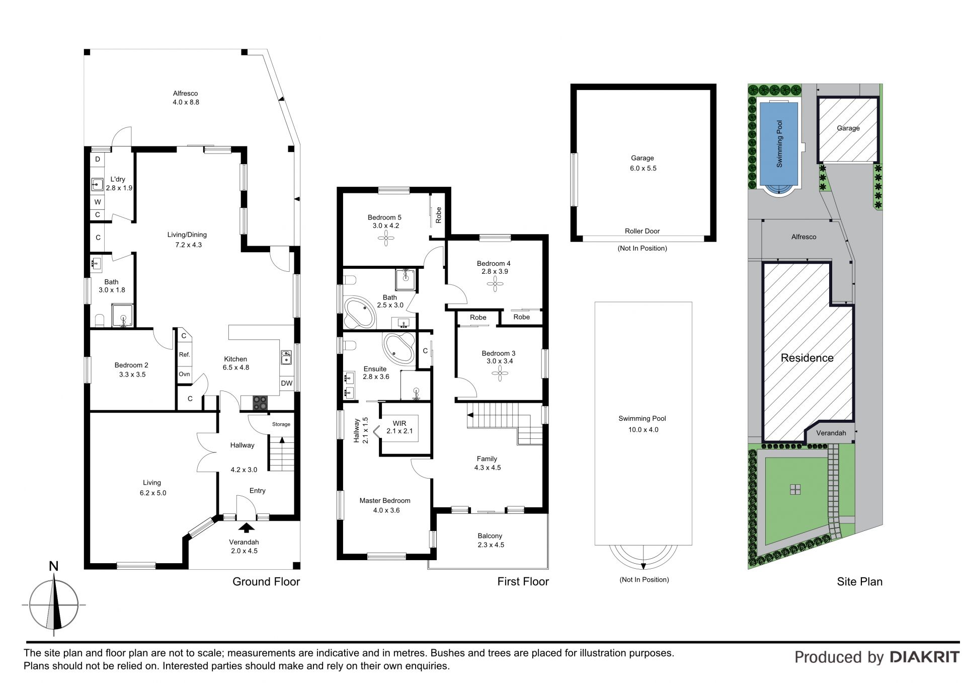
Family style, size and beachfront vibes define this large two-storey residence where quality finishes, a spacious design and uninterrupted water views combine to create an irresistible lifestyle home. Set directly opposite the golden sands of Sandringham Beach, it is the epitome of bayside excellence boasting substantial proportions and delivering sublime panoramic views, this remarkably rare residence sits on one of Sandringhams most exclusive waterfront strips. Occupying a prime 550sqm of land, the home features a north-facing backyard complete with a swimming pool, poolside deck, and a covered terrace where you can entertain friends in complete privacy.
Inside, the light-filled open living and dining areas are enhanced by polished floors, while the modern entertainer's kitchen is equipped with a breakfast bar and stone benchtops. The upstairs level includes a second living room that opens to a wide balcony with sensational views, along with four generously sized bedrooms, including the main with a walk-in robe and deluxe ensuite. A versatile fifth bedroom or home office is located downstairs with an adjoining bathroom, and there's ample parking with a double lock-up garage and driveway space.
This exceptional property not only offers an idyllic family lifestyle but also presents incredible potential for those looking to rebuild and maximise the premier location. From here it's a leisurely stroll to the beach at Dolls Point, bayside paths, foreshore walks and Sans Souci's local shops.
Luxe Points:
- Taking pride of place on a level 550sqm of prime beachfront land
- Orientated to take full advantage of natural light and dramatic views
- North-facing backyard includes swimming pool and poolside deck
- Covered entertainment terrace with panoramas over the surf break
- Light-filled open living and dining areas with easycare polished floors
- Modern entertainer's kitchen with breakfast bar and stone benches
- An upstairs living room and a wide balcony with sensational views
- Four upstairs bedrooms include a main with walk-in and deluxe ensuite
- A downstairs fifth bedroom/home office with an adjoining bathroom
- Double lock-up garage plus plenty of extra parking along the driveway
- Ducted air-conditioning, internal vacuum, ceiling fans and alarm system
Disclaimer: The above information is accurate to the best of our knowledge; however, we advise that all interested parties make their own enquiries as we will not be held responsible for any variation that may apply to this information. All distances, sizes and measurements are approximates only.
Inside, the light-filled open living and dining areas are enhanced by polished floors, while the modern entertainer's kitchen is equipped with a breakfast bar and stone benchtops. The upstairs level includes a second living room that opens to a wide balcony with sensational views, along with four generously sized bedrooms, including the main with a walk-in robe and deluxe ensuite. A versatile fifth bedroom or home office is located downstairs with an adjoining bathroom, and there's ample parking with a double lock-up garage and driveway space.
This exceptional property not only offers an idyllic family lifestyle but also presents incredible potential for those looking to rebuild and maximise the premier location. From here it's a leisurely stroll to the beach at Dolls Point, bayside paths, foreshore walks and Sans Souci's local shops.
Luxe Points:
- Taking pride of place on a level 550sqm of prime beachfront land
- Orientated to take full advantage of natural light and dramatic views
- North-facing backyard includes swimming pool and poolside deck
- Covered entertainment terrace with panoramas over the surf break
- Light-filled open living and dining areas with easycare polished floors
- Modern entertainer's kitchen with breakfast bar and stone benches
- An upstairs living room and a wide balcony with sensational views
- Four upstairs bedrooms include a main with walk-in and deluxe ensuite
- A downstairs fifth bedroom/home office with an adjoining bathroom
- Double lock-up garage plus plenty of extra parking along the driveway
- Ducted air-conditioning, internal vacuum, ceiling fans and alarm system
Disclaimer: The above information is accurate to the best of our knowledge; however, we advise that all interested parties make their own enquiries as we will not be held responsible for any variation that may apply to this information. All distances, sizes and measurements are approximates only.
