7 Avenel Road, Gymea Bay
House
Designer luxury masterpiece residence on over 840sqm level north facing land in premier location
A uniquely beautiful much loved family home built with style and grace filled with light and full of space. This level 4 to 5 bedroom showpiece is a grand residence set in prime Gymea Bay location. Offering exceptional living in a super convenient address built new just 15 years ago to exact specifications which embrace luxury ascetics combining generous portions with the finest of finishes. It is truly a gorgeous home complete with multiple living areas triple lock-up garage and vast entertaining space with pool and spa were lifestyle and luxury meet.
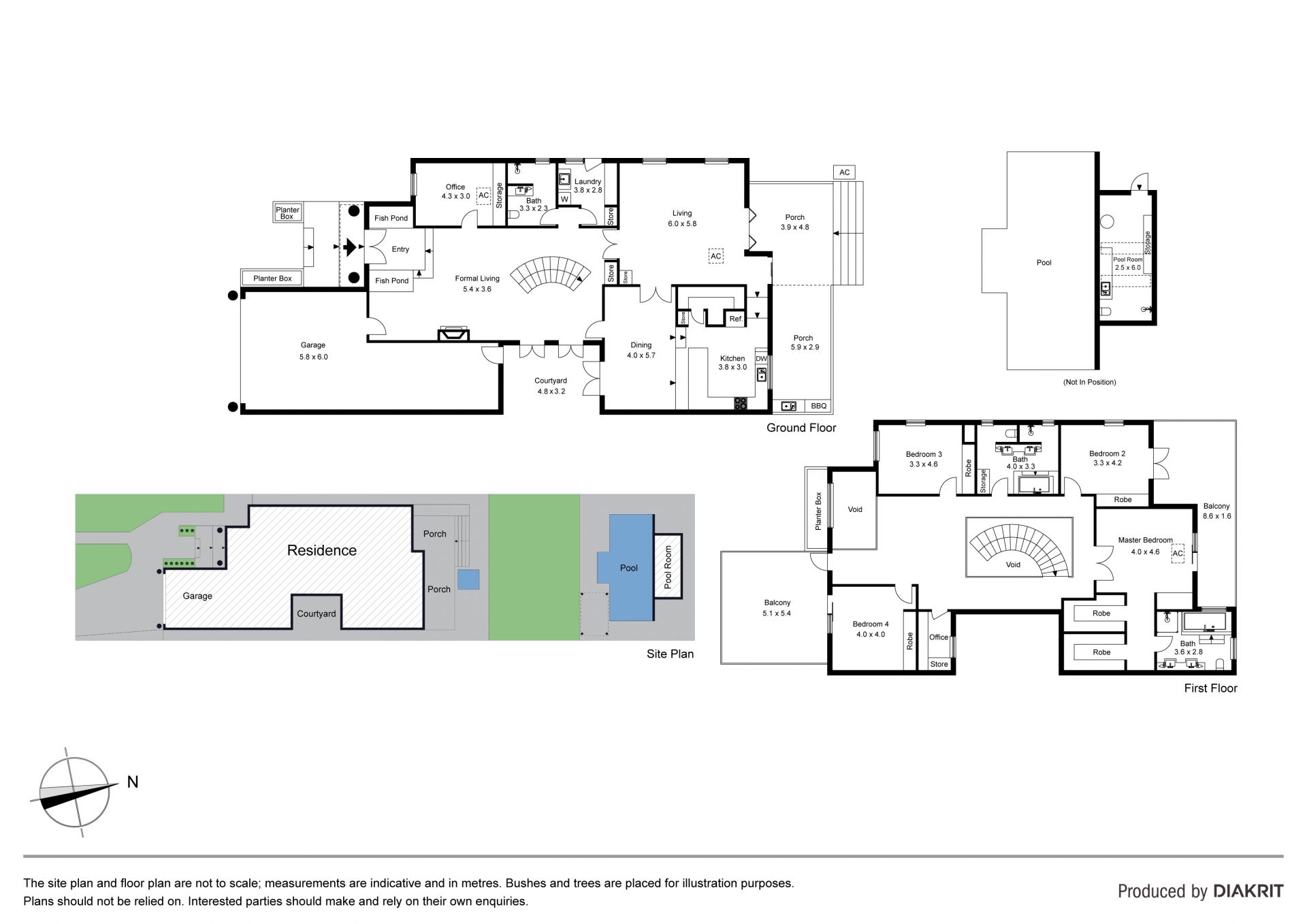
Presented impressively to the street you are greeted with grass lawns which lead to the home itself where upon entry a Grand Central foyer awaits you with a unique koi pond beneath your entry you then enter a superb front living zone with an eye catching marble wrought iron spiral staircase ascending to the upper level.
Flowing beneath and onward you arrive to a lavish and immaculate family area with a stylish large kitchen built for the entertainer alongside a master walk in pantry also adjoining this area is a lavish dining area that flows into a in-house designer courtyard for those sunny morning coffees.
Let us then walking to the north facing backyard always full of light and Sunshine Cascade down the Terrace stairs to the large lavish green lawns that meet your eyes with a grand custom-built Pool zone a simply marvellous space for relaxed family life great entertaining areas with peace of mind as a perfect Safe haven for children to play in. The rear amenities also house a custom built shed with bathroom facilities for the no water in house fun pool days.
What awaits when walking up the opulence staircase you are greeted with a luxury hotel style master suite with double door entry full of luxury, to the side a his and hers walk in robe plus a master ensuite with jet spa extra large shower double vanities again with the finest Calcutta gold marble beyond the master suite along the upper level house is an office space linen room and a large designer bathroom also with spa jet tub double vanity with Calcutta gold marble also another three large bedrooms all with hotel style aspects with built-in wardrobes also enjoying access to the large Veranda spaces overlooking the park and the pool area of the luxury home and beautiful tree lined area.
Truly an exquisite gem private and serene this spacious home is certain to appeal to the growing family with an array of special features including extensive Calcutta marble slow combustion fireplace air conditioning alarm system underfloor heating solar hot water heating ducted vacuum system and porcelain flooring with internal access to the large triple lock-up garage which also features a handy kitchenette the designer eye catching courtyard a spacious laundry and gas barbecue area these facilities among A list of highlights this is truly a home to savour a quick trip to Gymea trains within easy reach of schools cafes Westfield shopping beaches and waterways it covers every aspect of fantastic luxury living ready for the new owners to fall in love with.
Property features:
- Luxurious light-filled level block family home with two levels with massive outdoor spaces
- Breathtaking marble spiral wrought iron staircase
- Electric custom made wrought iron front security gates
- Large front lock-up garage for 3 cars
- Sunwashed pool zone north facing backyard
- Flowing lower level with large front living area rear family area zone dining and kitchen
- Luxe kitchen with Bosch appliances dishwasher stone benches walking pantry
- Sheltered rear terrace barbecue facilities flowing to grass yard, pool, spa
- Pool area bathed in sun lovely water feature, amenities custom-built shed with bathroom
- Master bedroom with double walk-in robes his and hers en-suite jet spa tub with direct access to rear balcony
- Three further oversized bedrooms with Built-ins to with direct access to balconies
- Three slick bathrooms featuring Calcutta marble and fine finishes in all
- Sunbake central courtyard slow combustion fireplace with soaring ceilings
- Porcelain flooring underfloor heating air conditioning house Sound-system
- Luxury ambience Koi pond, alarm system, solar hot water, ducted vacuum system
- Minutes to Gymea shops, schools, parks, Miranda Westfields, Cronulla beaches and sparkling waterways
- Note Perfect family residence in excellent location ready for next chapter
Presented impressively to the street you are greeted with grass lawns which lead to the home itself where upon entry a Grand Central foyer awaits you with a unique koi pond beneath your entry you then enter a superb front living zone with an eye catching marble wrought iron spiral staircase ascending to the upper level.
Flowing beneath and onward you arrive to a lavish and immaculate family area with a stylish large kitchen built for the entertainer alongside a master walk in pantry also adjoining this area is a lavish dining area that flows into a in-house designer courtyard for those sunny morning coffees.
Let us then walking to the north facing backyard always full of light and Sunshine Cascade down the Terrace stairs to the large lavish green lawns that meet your eyes with a grand custom-built Pool zone a simply marvellous space for relaxed family life great entertaining areas with peace of mind as a perfect Safe haven for children to play in. The rear amenities also house a custom built shed with bathroom facilities for the no water in house fun pool days.
What awaits when walking up the opulence staircase you are greeted with a luxury hotel style master suite with double door entry full of luxury, to the side a his and hers walk in robe plus a master ensuite with jet spa extra large shower double vanities again with the finest Calcutta gold marble beyond the master suite along the upper level house is an office space linen room and a large designer bathroom also with spa jet tub double vanity with Calcutta gold marble also another three large bedrooms all with hotel style aspects with built-in wardrobes also enjoying access to the large Veranda spaces overlooking the park and the pool area of the luxury home and beautiful tree lined area.
Truly an exquisite gem private and serene this spacious home is certain to appeal to the growing family with an array of special features including extensive Calcutta marble slow combustion fireplace air conditioning alarm system underfloor heating solar hot water heating ducted vacuum system and porcelain flooring with internal access to the large triple lock-up garage which also features a handy kitchenette the designer eye catching courtyard a spacious laundry and gas barbecue area these facilities among A list of highlights this is truly a home to savour a quick trip to Gymea trains within easy reach of schools cafes Westfield shopping beaches and waterways it covers every aspect of fantastic luxury living ready for the new owners to fall in love with.
Property features:
- Luxurious light-filled level block family home with two levels with massive outdoor spaces
- Breathtaking marble spiral wrought iron staircase
- Electric custom made wrought iron front security gates
- Large front lock-up garage for 3 cars
- Sunwashed pool zone north facing backyard
- Flowing lower level with large front living area rear family area zone dining and kitchen
- Luxe kitchen with Bosch appliances dishwasher stone benches walking pantry
- Sheltered rear terrace barbecue facilities flowing to grass yard, pool, spa
- Pool area bathed in sun lovely water feature, amenities custom-built shed with bathroom
- Master bedroom with double walk-in robes his and hers en-suite jet spa tub with direct access to rear balcony
- Three further oversized bedrooms with Built-ins to with direct access to balconies
- Three slick bathrooms featuring Calcutta marble and fine finishes in all
- Sunbake central courtyard slow combustion fireplace with soaring ceilings
- Porcelain flooring underfloor heating air conditioning house Sound-system
- Luxury ambience Koi pond, alarm system, solar hot water, ducted vacuum system
- Minutes to Gymea shops, schools, parks, Miranda Westfields, Cronulla beaches and sparkling waterways
- Note Perfect family residence in excellent location ready for next chapter
